Бетоносмесительная установка
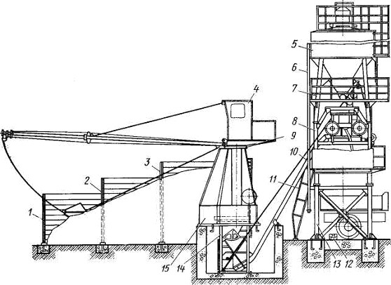
Установка бетоносмесительная СБ-70-1 (производительность до 15 м3/ч) состоит из четырех объемных блоков: смесительного блока с распределительным устройством, расходного силоса цемента с барабанным питателем, портала и секторного склада заполнителя со стреловым скрепером.
Секторный распределитель имеет четыре отсека. На выходных отверстиях отсеков щебня установлены секторные затворы, а у отсека песка — ленточный питатель. Заполнители поочередно поступают в дозатор заполнителей, а затем в ковш скипового подъемника. На портале смонтирован смесительный блок с двумя гравитационными бетоносмесителями вместимостью 500 л, дозаторы цемента и воды, лебедка скипового подъемника, кабина с пультом управления. В верхней части рамы установлен расходный бункер цемента с лопастным питателем.
Бетоносмесители установлены на подвижной раме, которая, перемещаясь при помощи гидроцилиндра, обеспечивает поочередную стыковку и расстыковку отверстий бетоносмесителей с лотками загрузочной воронки. Опрокидывание барабанов в положение разгрузки производится отдельными гидроцилиндрами при разделенном стыковании. Компоненты смеси поступают в загрузочную воронку из ковша скипового подъемника и дозатора цемента и направляются в соответствующий бетоносмеситель. Вода распределяется трехходовым краном. Поворот воронки и крана осуществляется перемещением подвижной рамы бетоносмесителей.
![]() |
Бетоносмесительная цикличная установка СБ-70-1: 1,2,3 — стойки; 4 — стреловой скрепер; 5 — бункер цемента; 6 — загрузочная труба; 7 — монтажная лестница; 8 — смесительный блок; 9 — опорно-поворотный механизм; 10 — направляющие; 11 — лестница; 12 — упорный брус; 13 — стойки рамы; 14 — дозатор заполнителей; 15 — секторный распределитель
По окончании загрузки бетоносмеситель отходит вместе с рамой от загрузочного отверстия распределительной воронки, продолжая смешивание. После окончания смешивания барабан автоматически опрокидывается в положение разгрузки. При отходе одного бетоносмесителя от распределительной воронки другой бетоносмеситель занимает положение для загрузки. Таким образом циклы приготовления смеси повторяются. Электрическая схема установки предусматривает автоматический и наладочный режимы работы. При работе в наладочном режиме продолжительность смешивания и время разгрузки устанавливает машинист. Имеется счетчик числа замесов, при выдаче заданного количества которых подается звуковой или световой сигнал. Обслуживают бетоносмесительную установку два человека.
<< Строительные подъемники | Бетоносмесители принудительного смешивания >>
| На главную | Архив: информация, материалы |

