Аспекты проектирования оборудования для производства фибробетона
Шевченко В.Ю. Емельянова И.А. Харьковский национальный университет строительства и архитектуры.
На кафедре механизации строительных процессов проведены исследования по определению условий масштабного перехода от опытного образца технологического комплекта оборудования для приготовления и транспортирования фибробетонных смесей к промышленному образцу.
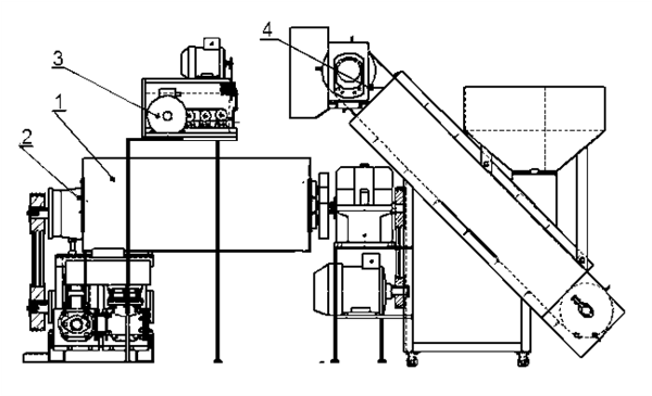
Решение задачи по созданию универсального комплекта оборудования для производства фибробетона привлекательно, прежде всего, тем, что позволяет совместить во времени все технологические процессы приготовления фибробетонных смесей. Таковыми являются нарезка и подача фибровых элементов в рабочее пространство бетоносмесителя и поступление из дозаторов остальных компонентов смеси. В технологическом комплекте оборудования для приготовления фибробетонных смесей основной машиной является трёхвальный бетоносмеситель. Нарезку полипропиленового фибрового волокна обеспечивает автомат-резчик, установленный на раме непосредственно над бетоносмесительным агрегатом. Подачу и дозирование остальных компонентов (инертных наполнителей) - ленточный скребковый питатель. Для транспортирования готовой бетонной смеси используется бетононасос (или растворонасос).

Рис.1. Общий вид технологического комплекта оборудования для приготовления и транспортирования фибробетонных смесей.
1 - трёхвальный бетоносмеситель; 2 - двухпоршневой бетононасос; 3 - автомат-резчик полипропиленовой фибры; 4 - ленточный скребковый питатель.
В таком конструктивном решении создан опытно-промышленный образец оборудования. Для создания промышленных образцов машин следует учитывать масштабные факторы. При этом, переход можно произвести, используя геометрический масштаб, а также гидродинамическое подобие. При гидродинамическом подобии между опытным и промышленным образцами бетоносмесителей следует принимать следующие условия: смеси приготавливаются с одними и теми же свойствами по плотности, динамической и кинематической вязкости. В этом случае, наблюдается равенство критериев Рейнольдса:
Reн = Reм =idem и
(1)
где: vн и vм - соответственно окружные скорости вращения рабочих органов промышленного и опытного образов смесителей; Dн , Dм - диаметры рабочих органов промышленного и опытного образов машин; V - кинематическая вязкость бетонной смеси.
Для перехода от опытного образца технологического комплекта к промышленному использованы масштабные коэффициенты отдельных машин, включённых в него. Анализу подлежат производительности этих машин.
Масштабный фактор при расчете производительности бетоносмесителя определяется зависимостью:
(2)
где: KL = Lн/Lм - масштабный фактор, учитывающий переход от модели к промышленному образцу машины по длине.
Масштабный коэффициент для перехода к промышленному образцу бетононасоса определяется так:
(3)
где : R - радиус трубопровода, м/с; V - среднее значение скорости потока при данной подаче насосом бетона или раствора, м/с2.
Или же масштабный коэффициент для перехода к промышленному образцу растворонасоса (бетононасоса) при одних и тех же значениях параметров Re, β, H1, Wbok, ρо имеет следующий вид:
(4)
Переход от модели скребкового питателя к промышленному образцу производится при условии, что V , ρо, k= const для обоих видов рассматриваемых механизмов.
(5)
где: V - скорость движения ленты, м/с; B - ширина ленты, м; ρо - плотность транспортируемого материала, м3/кг; k- коэффициент, учитывающий угол наклона ленты.
При определении масштабного коэффициента перехода учитываем, что k = const для обоих видов оборудования.
(6)
где: mф - маса фибрового элемента, кг; ω - угловая скорость вращения ножа.
При определении масштабного коэффициента перехода от опытно-промышленного образца комплекта к промышленному образцу необходимым условием является сохранение пропорциональности отдельных составляющих данного комплекта. Исходя из этого условия, получаем масштабный коэффициент перехода для технологического комплекта, который выглядит следующим образом:
(7)
Выводы:
1. Приведены схемы технологического комплекта оборудования и его составляющих для производства и транспортирования бетонной смеси с использованием полипропиленовой фибры.
2. Указаны пути определения масштабного перехода от опытных образцов машины к промышленным бетоносмесителям.
<< Исследование процессов загрузки и параметров работы ленточных конвейеров | Циклическая долговечность элементов конструкций строительных механизмов >>
| На главную | Архив: информация, материалы |
