Бетоносмесители гравитационно-принудительного принципа действия
Фоменко Д.С., д.т.н. Емельянова И.А. Харьковский национальный университет строительства и архитектуры.
Бетоносмеситель гравитационно-принудительного действия для приготовления бетонных смесей различного назначения.
Сотрудниками кафедры МСП (Механизация строительных процессов) был создан гибридный бетоносмеситель, объединяющий в себе одновременно принципы работы принудительных и гравитационных бетоносмесителей и собравшего преимущества обоих способов перемешивания.
Бетоносмеситель гравитационно-принудительного действия конструктивно состоит из подвижного стального корпуса цилиндрической формы и вращающегося вала внутри. На внутренней поверхности корпуса закреплены пластинчатые лопатки, установленные последовательными рядами с заданным шагом вдоль всей внутренней окружности. В центре вращения корпуса размещен приводной горизонтальный вал с держателями лопаток, которые закреплены на нём последовательны смещением по винтовой линии. Корпус бетоносмесителя и внутренний лопастной вал совершают вращение в противоположных направлениях.

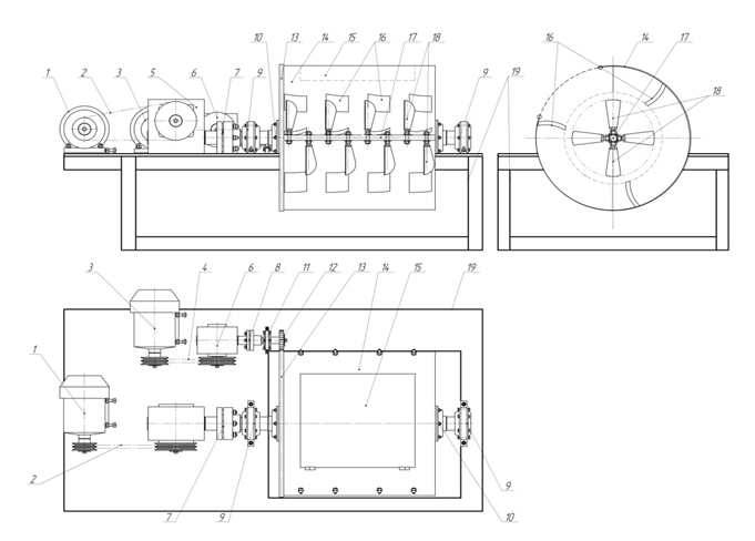
Рис.1 - Схема смесителя гравитационно-принудительного действия.
1, 3 - электродвигатель; 2, 4 - клиноременная передача; 5, 6 - червячный редуктор; 7, 8 - втулочно-пальцевая муфта; 9 - роликоопоры; 10 - подшипниковые узлы; 11 - пружина-держатель звездочки; 12 - звездочка; 13 - цепь; 14 - корпус; 15 - крышка; 16 - лопатки корпуса; 17 - вал; 18 - лопатки вала; 19 - рама бетоносмесителя.
Цилиндрический корпус бетоносмесителя 14 через подшипниковые узлы 10, горизонтальный вал 17 и роликоопоры 9 опирается на раму 19. К внутренней поверхности корпуса 14 прикреплены лопатки 16. В центре корпуса смесителя расположен горизонтальный вращающийся вал 17 с лопатками 18.
Крутящий момент от электродвигателя 1 с помощью клиноременной передачи 2 передаётся к редуктору 5. Далее, от вала редуктора 5 через муфту 7, начинает совершать вращение горизонтальный вал 17 с закрепленными на нем лопатками 18.
От электродвигателя 3 через клиноременную передачу 4 передается крутящий момент к редуктору 6. Далее крутящий момент от вала редуктора 6 через муфту 8 приводит во вращение корпус бетоносмесителя 14 с помощью цепной передачи, которая состоит из звездочки 12, пружины-держателя звездочки 11 и цепи 13, закрепленной на внешней поверхности корпуса 14.
К корпусу бетоносмесителя 14 крепится крышка 15 - она предназначена для закрытия загрузочно-разгрузочного отверстия механизма и используется, соответственно, для загрузки исходных компонентов и выгрузки готовой бетонной смеси.
В рабочее пространство корпуса смесителя с прикрепленными к нему лопатками и вращающимся в это время горизонтальным лопастным валом загружаются исходные компоненты строительной смеси. Когда лопатки корпуса смесителя при его вращении поднимаются в верхнюю часть рабочего пространства машины частицы смеси сходят с их поверхности, попадая на лопатки вращающегося вала, установленные навстречу лопаткам корпуса. С лопаток вала частицы смеси снова падают на лопатки вращающегося корпуса машины, и процесс их движения повторяется. Такое движение частиц смеси в рабочем пространстве смесителя между левой и правой торцевыми стенками обеспечивает каскадный режим работы машины.
Бетоносмесители гравитационно-принудительного действия могут работать как самостоятельные агрегаты, так и в составе технологических комплектов оборудования производства бетона или строительного раствора различной производительности и назначения.

Рис. 2 - Бетоносмеситель гравитационно-принудительного действия, работающий в каскадном режиме.
Техническая производительность смесителя бетона гравитационно-принудительного действия, с учетом конструктивных особенностей машины, при коэффициенте заполнения объема смесителя Кзо = 0,5, имеет вид:
, м3/ч, (1)
где Vобщ- общий объем смеси в смесителе, м3;
- количество циклов работы машины в час;
tц - продолжительность одного цикла, которая состоит из суммы продолжительности загрузки компонентов t1, их перемешивания t2 и разгрузки готовой смеси t3 (tц = t1 + t2 + t3), с;
Rк - радиус корпуса смесителя, м; Lк - длина корпуса смесителя, м; k - коэффициент, учитывающий положение смеси в корпусе (при Кзо = 0,5; k = 1); rв - радиус вала, м; rн, lн, zн - радиус, длина, количество ножек лопаток вала, м; b1, h1, с1 - длина, высота и толщина лопаток корпуса смесителя, м; b2, h22 - длина, высота и толщина лопаток вала смесителя, м.
При увеличении коэффициента заполнения корпуса машины смесью (Кзо = 0,6...0,7) коэффициент k, учитывающий положение смеси в корпусе, будет равен k = 1,2...1,4, а при уменьшении коэффициента заполнения объема смесью машины (Кзо = 0,4…0,45) - k = 0,8…0,9.
<< Дозаторы-интеграторы расхода непрерывного действия | Статистический анализ надёжности грузоподъёмных машин >>
| На главную | Архив: информация, материалы |
