Навесные площадки для каменщика, монтажника
Предлагем на продажу подвесные площадки для высотных работ. Подвесная или навесная площадка используется для кладочных, облицовочных или монтажных работ при строительстве многоэтажных зданий, в монолитном домостроении. С помощью подвесных строительных площадок производится кладка кирпича с внешней стороны здания на больших высотах или в труднодоступных местах, где невозможна установка обычных опорных строительных лесов или других приспособлений для подмащивания. Таким образом обеспечивается доступ в ниши, лестничные проходы, консольные участки, эркерные выступы и т.д.

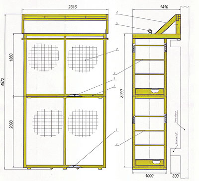
Технические характеристики навесных, подвесных площадок каменщика, монтажника:
| Параметр \ Модель навесной площадки | К-1.6 | К-1.6-01 | К-1.6-06 |
| Грузоподъёмность, кг | 1000 | 1000 | 1000 |
| Длина по фасаду, мм | 3000 | 5000 | 2500 |
| Глубина (ширина настила), мм | 1000 | 1000 | 1400 |
| Высота конструкции, мм | 3300 | 3300 | 4500 |
| Тип крепления | консоль, распорки | консоль, распорки | за уступ, шпильки |

Навесная рабочая площадка для каменщика или монтажника представляет собой металлическую сварную конструкцию из стандартного металлопрофиля с настилом. Для удобства проведения работ и увеличения площади охвата поверхности, подвесные площадки, как правило, оборудуются двумя ярусами, которые оснащены деревянными настилами шириной 1м. Внешний периметр конструкции оснащён ограждением.
Монтаж навесных площадок осуществляется на фасаде возводимого объекта при помощи крана. Конструкция навешивается на козырёк или иные выступы и крепится к поверхности при помощи специальных стяжек или талрепов.
Расчетная грузоподъёмность подвесных площадок для высотных работ и кладки кирпича составляет 1 т. С учётом этого рассчитывается максимальное количество строительных материалов и рабочих, которые могут на ней разместиться. При окончании работ на одном участке, площадка раскрепляется и переносится вдоль стены на требуемое расстояние и высоту. При большом объёме строительных работ целесообразно использование нескольких навесных площадок, которые могут быть объеденены в единые модули. В таких случаях комбинации данного вида строительной оснастки могут называться - подвесные строительные леса.
