Станция растаривания мягких контейнеров биг-бэг
Установка предназначена для растаривания мягких контейнеров биг-бэг. Упаковка типа биг-бэг (от английского: Big-Bag) получила широкое распространение в последнее время как удобное средство транспортирования пылевидных веществ, не требующее для перевозки специальных машин или вагонов (цементовозов и хопперов). Стандартная вместимость (емкость) контейнеров биг-бег - 2500 кг.
Передача сухого цемента или других пылевидных веществ осуществляется непосредственно в смесители или на склады (цементные силосы). Станции растаривания (установки растарки) имеют простую и надёжную конструкцию, легко монтируются в составе растворного или бетоносмесительного узла, мобильного бетонного завода, комплекса складов цемента.
Конструкция представляет собой раму, на которой смонтирована воронка с возможностью стыковки к ней снизу шнекового питателя или насоса, вспарывателя биг-бэгов, установленного в воронке, а также грузоподъемного механизма (кран-балка с подвижной электрической талью).
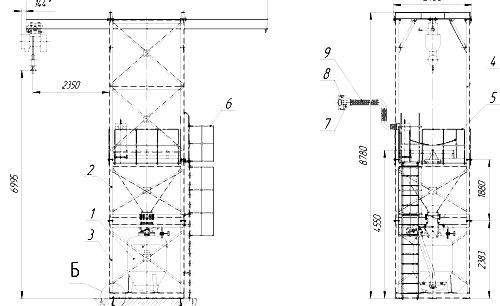
Станция растарки Биг-Бэгов с пневмокамерным насосом Монжус ОПр-596.00.000СБ

- Насос Монжус 1200-6
- Модуль растарки
- Опора
- Секция грузовая
- Ограждение
- Лестница
- Переходник
- Вентилятор
- Воздуховод d=160 мм
Технические характеристики установки растаривания цемента:
| Грузоподъёмность кг | 2500 |
| Камерный насос Монжус 1200-6 НО-324 МА: | |
| Производительность т/ч | 40...60 |
| Номинальная ёмкость м3 | 1,25 |
| Рабочее давление кг/см2 | 4...6 |
| Электроталь ТЭ-320-511 | |
| Скорость подъёма м/с | 0,16 |
| Скорость перемещения м/с | 0,53 |
| Объём накопительного бункера м3 | 2,8 |
| Габаритные размеры | |
| Длина (не более) мм | 7400 |
| Ширина (не более) мм | 2400 |
| Высота (не более) мм | 8780 |
| Масса (не более) кг | 5500 |
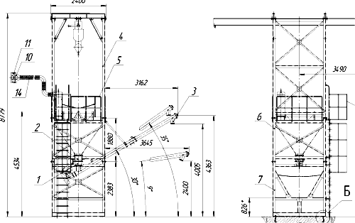
Станция растаривания биг-бегов со шнековым питателем ОПр-597.00.000СБ

- Переходник
- Затвор секторный
- Питатель шнековый
- Секция грузовая
- Ограждение
- Модуль растарки
- Опора
- Лестница
- Вентилятор
- Воздуховод d=160мм
Технические характеристики установки растарки цемента:
| Грузоподъёмность кг | 2500 |
| Питатель шнековый ОПр-591.00.000М: | |
| Производительность при непрерывной подаче т/ч | 12 |
| Мощность двигателя кВт | 3 |
| Частота вращения шнека об/мин | 300 |
| Электроталь ТЭ-320-511 | |
| Скорость подъёма м/с | 0,16 |
| Скорость перемещения м/с | 0,53 |
| Объём накопительного бункера м3 | 2,8 |
| Габаритные размеры | |
| Длина (не более) мм | 7400 |
| Ширина (не более)* мм | 5445 |
| Высота (не более) мм | 8780 |
| Масса (не более) кг | 4500 |
* Размер указан для угла наклона питателя шнекового равного 300.
